Construction of Community Centre at Beshalbhadi Lechotoli
OD/373/3580/121641/384286/00067196
Bikashita Gaon Bikashita Odisha
Viksit Gaon Vikshit Odisha (VGVO)
Building
Community Centre
4441
16-10-2025
Download
dfgdsfdsfs

Sundargarh
Kuarmunda
Salangabahal

Stage wise Geo-tag Photo:

Before
Status Image
  • Latitude: 22.3702541
  • Longitude: 84.498241
  • Date & Time: 25 Mar 2026, 10:38 AM
Transparency Board
Status Image
  • Latitude: 22.370221
  • Longitude: 84.4981307
  • Date & Time: 25 Mar 2026, 10:38 AM
During
Status Image
  • Latitude: 22.3702848
  • Longitude: 84.4983032
  • Date & Time: 25 Mar 2026, 10:38 AM
Completed
Status Image
  • Latitude: 22.3703
  • Longitude: 84.4981618
  • Date & Time: 25 Mar 2026, 10:38 AM

600000
0
600000
Download

Stage Officer Date Started Date Completed Status
Case Record Opened BDO Kuarmunda (BDO) 04-12-2025 04-12-2025 Approved
Estimate Preparation BDO Kuarmunda (BDO) 04-12-2025 05-02-2026 Approved
Technical Sanction ChaitanyaHembram (AEE) 05-02-2026 05-02-2026 Approved
Administrative Approval BDO Kuarmunda (BDO) 05-02-2026 05-02-2026 Approved
Work Order Issued BDO Kuarmunda (BDO) 05-02-2026 05-02-2026 Generated
Execution In Progress trilochanmallick (AE / JE) 05-02-2026 21-02-2026 Approved

# Name Action
1 Cover Page View Download
2 Sanction File View Download
3 Ordersheet View Download
4 Location Map View Download
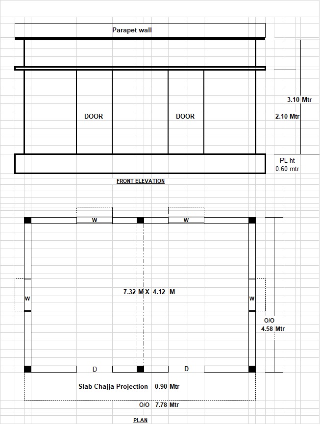
5 Drawing View Download
6 Work site photo View Download
7 Quarry Document View Download
8 Estimate Cover Page View Download
9 Detail Estimate View Download
10 Abstract Estimate View Download
11 Estimation DPR View Download
12 Lead Statement View Download
13 Analysis View Download
14 Technical Sanction View Download
15 Administrative Approval View Download
16 Work Order View Download
1st & Final Bill
17 Attac (BRM029) View Download
18 Attac (BRM340) View Download
19 Attac (BRM028) View Download
20 Attac (BRM005) View Download
21 Attac (BRMMR0025) View Download
22 Attac (BRM006) View Download
23 Attac (BRM104) View Download
24 Attac (BRM092) View Download
25 Attac (BRM084) View Download
26 Attac (BRM162) View Download
27 Attac (BRM341) View Download
28 Attac (BRM060) View Download
29 Attac (BRM052) View Download
30 Attac (BRM094) View Download
31 Attac (BRM174) View Download
32 Attac (BRM131) View Download
33 Attac (BRMMR0038) View Download
34 Attac (BRM255) View Download
35 Attac (BRM064) View Download
36 Attac (BRM044) View Download
37 Geo Tagging View Download
38 Merged Bill Measurement View Download
39 Completion Document View Download