Completion of Incomplete AWC Building at Dandipadar
OD/354/3367/117633/410591/00064407
SFC Devolution of Fund
5TH SFC DEVOLUTION GRANT TO PANCHAYAT SAMITI
Building
AWC
15612
16-06-2025
Download
dfgdsfdsfs

Ganjam
Bhanjanagar
Badakodanda

Stage wise Geo-tag Photo:

Before
Status Image
  • Latitude: 19.928294
  • Longitude: 84.5272453
  • Date & Time: 27 Nov 2025, 02:15 PM
Transparency Board
Status Image
  • Latitude: 19.9282397
  • Longitude: 84.5270284
  • Date & Time: 27 Nov 2025, 02:15 PM
During
Status Image
  • Latitude: 19.9282519
  • Longitude: 84.5272787
  • Date & Time: 27 Nov 2025, 02:15 PM
Completed
Status Image
  • Latitude: 19.9281978
  • Longitude: 84.5271749
  • Date & Time: 27 Nov 2025, 02:15 PM

200000
199996.00
4
Download

Stage Officer Date Started Date Completed Status
Case Record Opened BHARATEE DEVI (BDO) 13-11-2025 14-11-2025 Approved
Estimate Preparation BHARATEE DEVI (BDO) 14-11-2025 18-11-2025 Approved
Technical Sanction NITYANANDA PATRO (AEE) 18-11-2025 18-11-2025 Approved
Administrative Approval BHARATEE DEVI (BDO) 18-11-2025 20-11-2025 Approved
Work Order Issued BHARATEE DEVI (BDO) 21-11-2025 21-11-2025 Generated
Execution In Progress MADHU BEHERA (AE / JE) 20-11-2025 25-11-2025 Approved

# Name Action
1 Cover Page View Download
2 Sanction File View Download
3 Ordersheet View Download
4 Location Map View Download
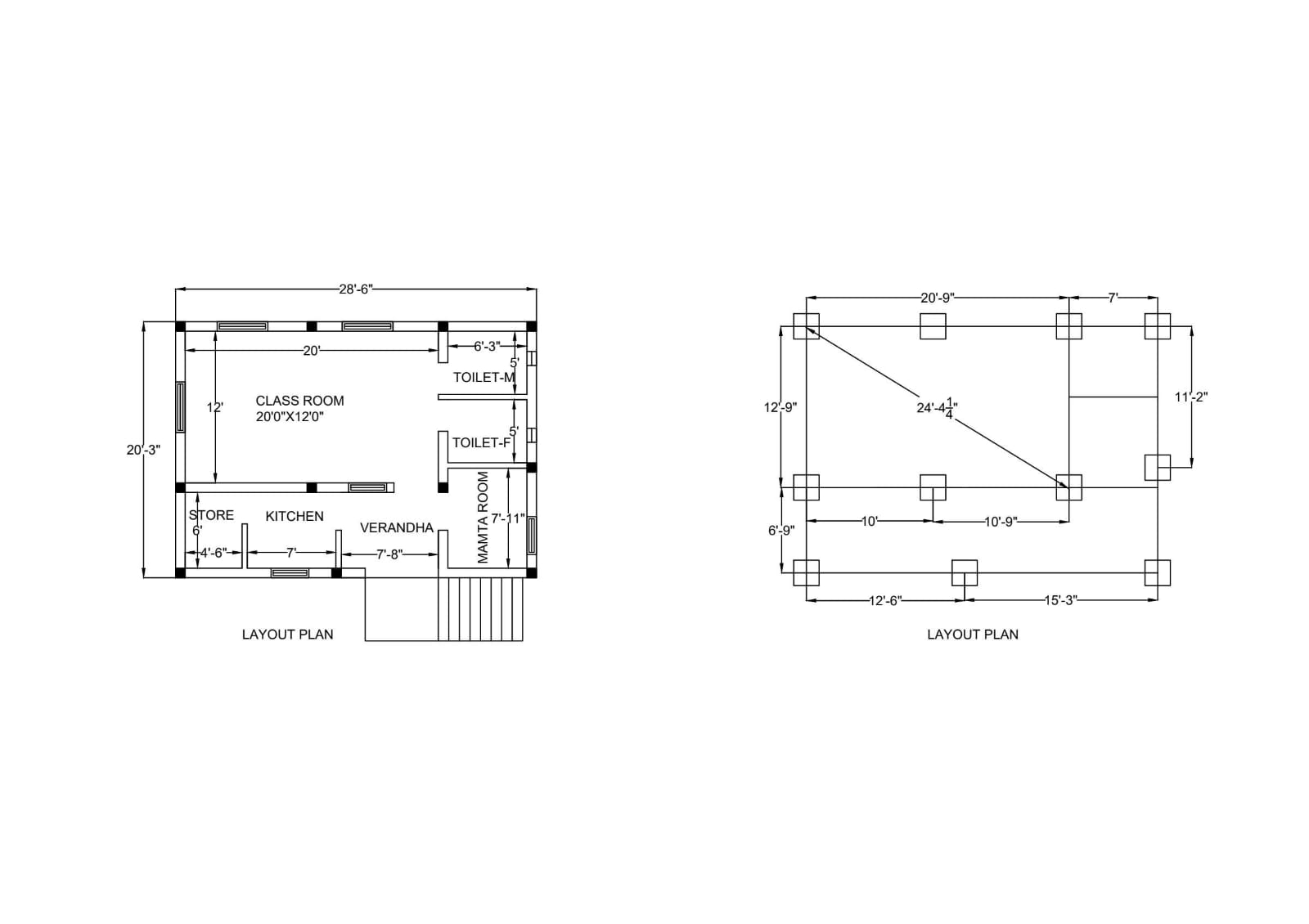
5 Drawing View Download
6 Work site photo View Download
7 Quarry Document View Download
8 Estimate Cover Page View Download
9 Detail Estimate View Download
10 Abstract Estimate View Download
11 Estimation DPR View Download
12 Lead Statement View Download
13 Analysis View Download
14 Technical Sanction View Download
15 Administrative Approval View Download
16 Work Order View Download
1st & Final Bill
17 Attac (BRM131) View Download
18 Attac (BRMMR0027) View Download
19 Attac (BRM340) View Download
20 Attac (BRM130) View Download
21 Attac (BRM129) View Download
22 Attac (BRM174) View Download
23 Attac (BRM141) View Download
24 Attac (BRM253) View Download
25 Attac (BRM140) View Download
26 Attac (BRM255) View Download
27 Attac (BRM252) View Download
28 Geo Tagging View Download
29 Merged Bill Measurement View Download
30 Completion Document View Download