DEVELOPMENT OF KANTABADA SMASAN
OD/362/3460/119608/407482/00100976
Bikashita Gaon Bikashita Odisha
Viksit Gaon Vikshit Odisha (VGVO)
Other Infrastructure
Crematorium
246
22-01-2026
Download
dfgdsfdsfs

Khordha
Bhubaneswar
Kantabnada

Stage wise Geo-tag Photo:

Before
Status Image
  • Latitude: 20.3099643
  • Longitude: 85.7190137
  • Date & Time: 09 Apr 2026, 06:24 PM
Transparency Board
Status Image
  • Latitude: 20.3098489
  • Longitude: 85.7192063
  • Date & Time: 09 Apr 2026, 06:24 PM
During
Status Image
  • Latitude: 20.3098409
  • Longitude: 85.7192798
  • Date & Time: 09 Apr 2026, 06:24 PM
Completed
Status Image
  • Latitude: 20.3099491
  • Longitude: 85.719033
  • Date & Time: 09 Apr 2026, 06:24 PM

500000
0
500000
Download

Stage Officer Date Started Date Completed Status
Case Record Opened Deviprasad Mohanty (BDO) 06-03-2026 06-03-2026 Approved
Estimate Preparation Ms Priyanka Patra (AE / JE) 06-03-2026 09-03-2026 Approved
Technical Sanction Sri Niranjan Biswal (AEE) 09-03-2026 09-03-2026 Approved
Administrative Approval Deviprasad Mohanty (BDO) 09-03-2026 09-03-2026 Approved
Work Order Issued Deviprasad Mohanty (BDO) 10-03-2026 10-03-2026 Generated
Execution In Progress Itishree P Behura (AE / JE) 10-03-2026 29-03-2026 Approved

# Name Action
1 Cover Page View Download
2 Sanction File View Download
3 Ordersheet View Download
4 Location Map View Download
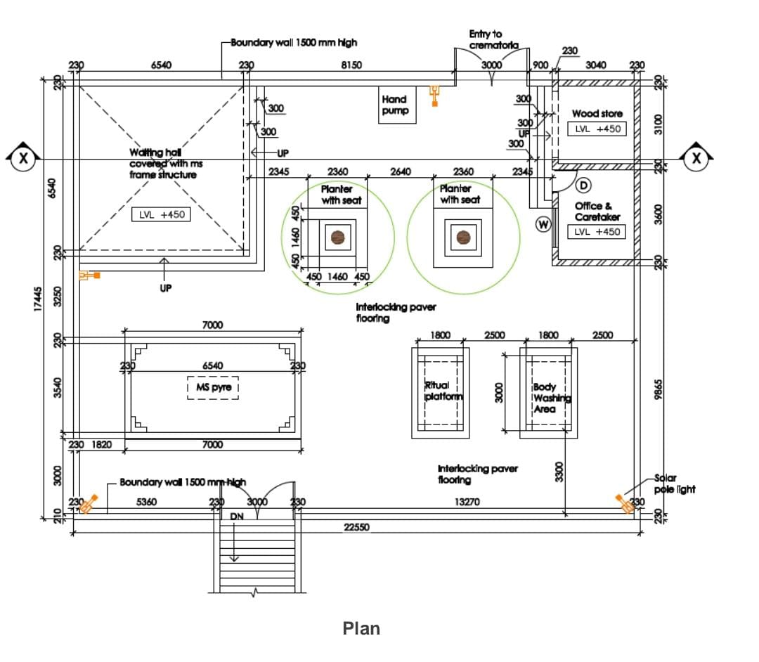
5 Drawing View Download
6 Work site photo View Download
7 Quarry Document View Download
8 Estimate Cover Page View Download
9 Detail Estimate View Download
10 Abstract Estimate View Download
11 Estimation DPR View Download
12 Lead Statement View Download
13 Analysis View Download
14 Technical Sanction View Download
15 Administrative Approval View Download
16 Work Order View Download
1st & Final Bill
17 Attac (BRM029) View Download
18 Attac (BRM340) View Download
19 Attac (BRM028) View Download
20 Attac (BRM044) View Download
21 Attac (BRM005) View Download
22 Attac (BRMMR0025) View Download
23 Attac (BRMM286) View Download
24 Attac (BRMM287) View Download