| Stage | Officer | Date Started | Date Completed | Status |
|---|---|---|---|---|
| Case Record Opened | Dibyendu Kumar Das (BDO) | 23-12-2025 | 23-12-2025 | Approved |
| Estimate Preparation | Dibyendu Kumar Das (BDO) | 23-12-2025 | 08-02-2026 | Approved |
| Technical Sanction | Nalinikanta Mohapatra (AEE) | 08-02-2026 | 09-02-2026 | Approved |
| Administrative Approval | Dibyendu Kumar Das (BDO) | 09-02-2026 | 10-02-2026 | Approved |
| Work Order Issued | Dibyendu Kumar Das (BDO) | 10-02-2026 | 10-02-2026 | Generated |
| Execution In Progress | Shibangi Dash (AE / JE) | 10-02-2026 | 12-02-2026 | Approved |
| # | Name | Action | ||
|---|---|---|---|---|
| 1 | Sanction File | View | Download | |
| 2 | Ordersheet | View | Download | |
| 3 | Location Map | View | Download | |
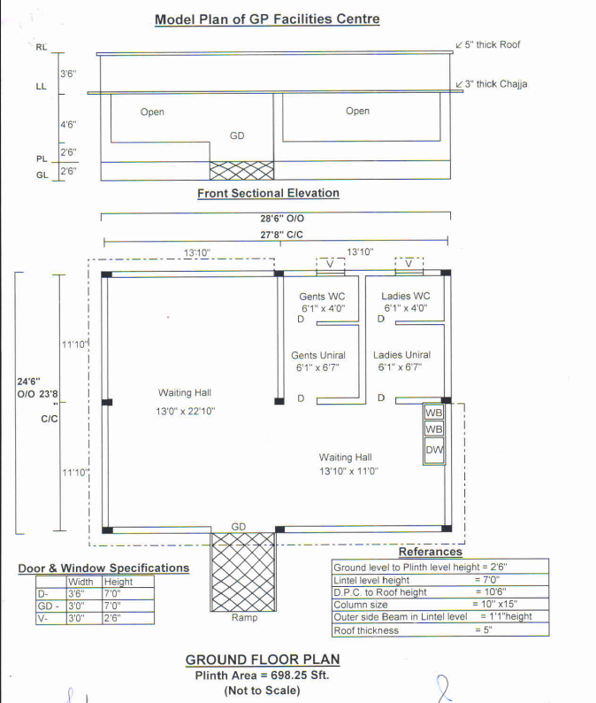
| 4 | Drawing | View | Download | |
| 5 | Work site photo | View | Download | |
| 6 | Estimate Cover Page | View | Download | |
| 7 | Detail Estimate | View | Download | |
| 8 | Abstract Estimate | View | Download | |
| 9 | Estimation DPR | View | Download | |
| 10 | Lead Statement | View | Download | |
| 11 | Analysis | View | Download | |
| 12 | Technical Sanction | View | Download | |
| 13 | Administrative Approval | View | Download | |
| 14 | Work Order | View | Download | |
| Miscellaneous Document | ||||
| 15 | Document 1 | View | Download | |
| 1st & Final Bill | ||||
| 16 | Attac (BRM029) | View | Download | |
| 17 | Attac (BRM340) | View | Download | |
| 18 | Attac (BRM028) | View | Download | |
| 19 | Attac (BRM044) | View | Download | |
| 20 | Attac (BRM005) | View | Download | |
| 21 | Attac (BRM060) | View | Download | |
| 22 | Attac (BRM052) | View | Download | |
| 23 | Attac (BRM341) | View | Download | |
| 24 | Attac (BRM162) | View | Download | |
| 25 | Attac (BRMMR0022) | View | Download | |
| 26 | Attac (BRMMR0021) | View | Download | |
| 27 | Attac (BRMMR0020) | View | Download | |
| 28 | Attac (BRMMR0027) | View | Download | |
| 29 | Attac (BRMMR0024) | View | Download | |
| 30 | Attac (BRMMR0023) | View | Download | |
| 31 | Attac (BRMMR0005) | View | Download | |
| 32 | Attac (BRM271) | View | Download | |
| 33 | Attac (BRMMR0008) | View | Download | |
| 34 | Attac (BRMMR0012) | View | Download | |
| 35 | Attac (BRMMR0011) | View | Download | |
| 36 | Attac (BRMMR0010) | View | Download | |
| 37 | Attac (BRMMR0009) | View | Download | |
| 38 | Attac (BRM304) | View | Download | |
| 39 | Attac (BRM130) | View | Download | |
| 40 | Attac (BRM131) | View | Download | |
| 41 | Attac (BRM252) | View | Download | |
| 42 | Attac (BRM253) | View | Download | |
| 43 | Attac (BRM140) | View | Download | |
| 44 | Attac (BRM255) | View | Download | |
| 45 | Attac (BRM143) | View | Download | |
| 46 | Attac (BRM137) | View | Download | |
| 47 | Attac (BRM141) | View | Download | |
| 48 | Attac (BRMMR0025) | View | Download | |
| 49 | Attac (BRM104) | View | Download | |
| 50 | Attac (BRM092) | View | Download | |
| 51 | Attac (BRM094) | View | Download | |
| 52 | Attac (BRM084) | View | Download | |
| 53 | Attac (BRM174) | View | Download | |
| 54 | Attac (BRMMR0013) | View | Download | |
| 55 | Geo Tagging | View | Download | |
| 56 | Merged Bill Measurement | View | Download | |
| 57 | Completion Document | View | Download | |
| 58 | Handover Document | View | Download | |