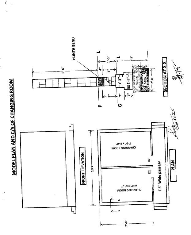
Const. of 3 nos. of changing room (Double berth) bathing ghat at Sundi nadi Ghat, Kakirigumma
OD/363/3475/119859/428850/00069433
Bikashita Gaon Bikashita Odisha
Viksit Gaon Vikshit Odisha (VGVO)
Water Body
Bathing Ghat or Changing Room
5463
29-10-2025
Download
dfgdsfdsfs

Koraput
Laxmipur
Kakirigumma

Stage wise Geo-tag Photo:

Before
Status Image
  • Latitude: 18.9251434
  • Longitude: 83.0119571
  • Date & Time: 27 Feb 2026, 01:05 PM
Transparency Board
Status Image
  • Latitude: 18.9251413
  • Longitude: 83.0119776
  • Date & Time: 23 Mar 2026, 12:17 PM
During
Status Image
  • Latitude: 18.9251422
  • Longitude: 83.0119882
  • Date & Time: 23 Mar 2026, 12:32 PM
Completed
Status Image
  • Latitude: 18.9250644
  • Longitude: 83.0120848
  • Date & Time: 07 Apr 2026, 08:57 AM

300000
0
300000
Download

Stage Officer Date Started Date Completed Status
Case Record Opened SABYASACHI BEHERA (BDO) 12-12-2025 12-12-2025 Approved
Estimate Preparation SABYASACHI BEHERA (BDO) 12-12-2025 03-02-2026 Approved
Technical Sanction Abhishek Sarangi (AEE) 03-02-2026 04-02-2026 Approved
Administrative Approval SABYASACHI BEHERA (BDO) 04-02-2026 04-02-2026 Approved
Work Order Issued SABYASACHI BEHERA (BDO) 07-02-2026 07-02-2026 Generated
Execution In Progress RAJANI KANTA PANIGRAHI (AE / JE) 04-02-2026 06-04-2026 Approved

# Name Action
1 Cover Page View Download
2 Sanction File View Download
3 Ordersheet View Download
4 Location Map View Download
5 Drawing View Download
6 Work site photo View Download
7 Quarry Document View Download
8 Estimate Cover Page View Download
9 Detail Estimate View Download
10 Abstract Estimate View Download
11 Estimation DPR View Download
12 Lead Statement View Download
13 Analysis View Download
14 Technical Sanction View Download
15 Administrative Approval View Download
16 Work Order View Download