Provision of Facility center at Kathabari GP head QTR
OD/361/3452/119457/386153/00015524
5th SFC Grant in Aid
Provision of Facilities at GP Head Quarter
Building
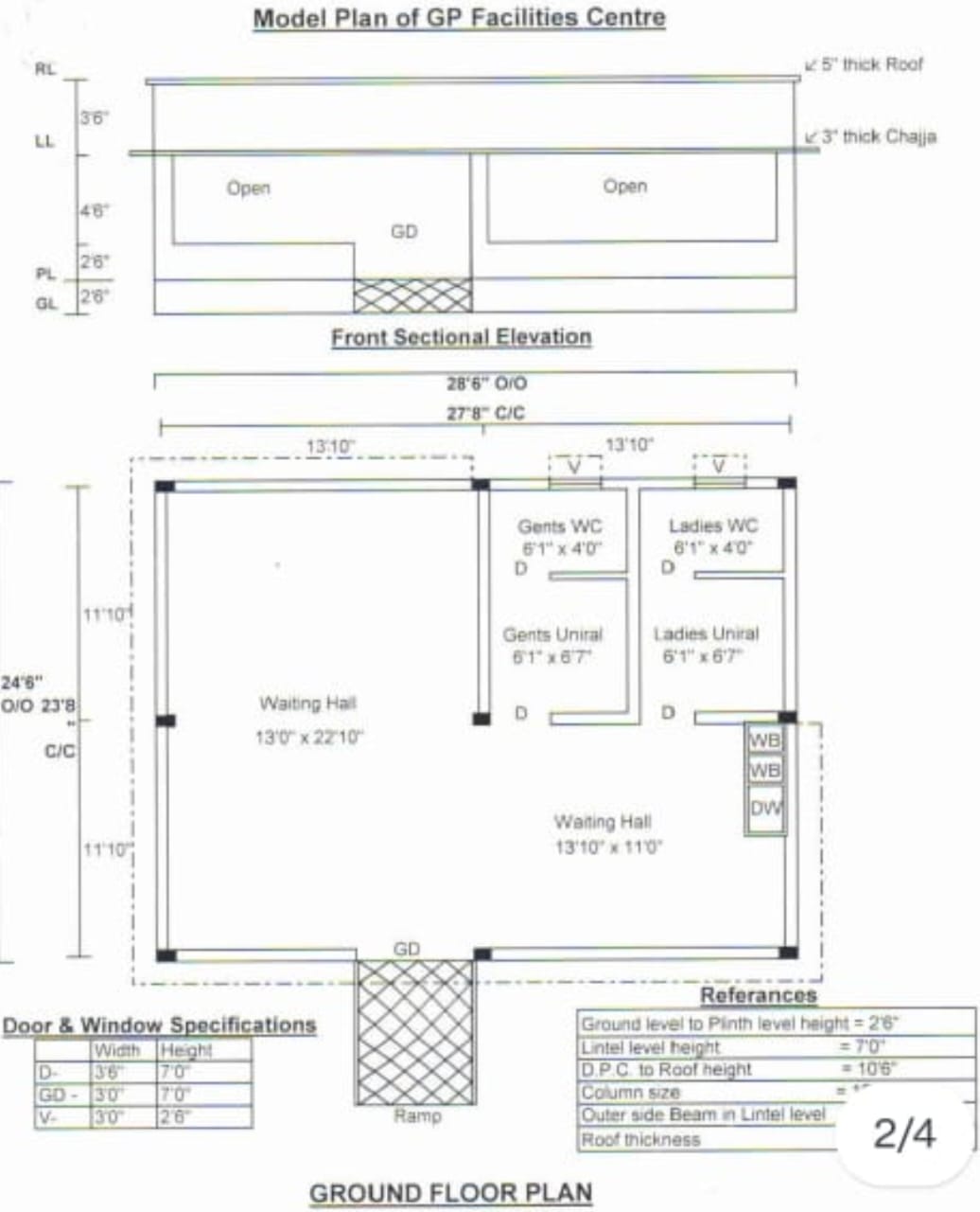
GP Facility Centre
18989
20-08-2024
Download
dfgdsfdsfs

Kendujhar
Kendujhar Sadar
Kathabari

Stage wise Geo-tag Photo:

Before
Status Image
  • Latitude: 21.610073
  • Longitude: 85.8103693
  • Date & Time: 18 Sep 2025, 09:26 AM
Transparency Board
Status Image
  • Latitude: 21.6100686
  • Longitude: 85.8103571
  • Date & Time: 18 Sep 2025, 09:26 AM
During
Status Image
  • Latitude: 21.6101134
  • Longitude: 85.8103435
  • Date & Time: 18 Sep 2025, 09:26 AM
Completed
Status Image
  • Latitude: 21.6099646
  • Longitude: 85.8103938
  • Date & Time: 29 Jan 2026, 08:55 AM

1000000
999951.00
49
Download

Stage Officer Date Started Date Completed Status
Case Record Opened Binod Chandra Panda (BDO) 16-01-2025 17-02-2025 Approved
Estimate Preparation Samir Kabi (AE / JE) 16-01-2025 28-06-2025 Approved
Technical Sanction Sabyasachi Pradhan (AEE) 28-06-2025 15-07-2025 Approved
Administrative Approval Binod Chandra Panda (BDO) 15-07-2025 18-07-2025 Approved
Work Order Issued Binod Chandra Panda (BDO) 18-07-2025 18-07-2025 Generated
Execution In Progress Subhashree Behera (AE / JE) 16-01-2025 30-12-2025 Approved

# Name Action
1 Cover Page View Download
2 Sanction File View Download
3 Ordersheet View Download
4 Location Map View Download
5 Drawing View Download
6 Work site photo View Download
7 Quarry Document View Download
8 Estimate Cover Page View Download
9 Detail Estimate View Download
10 Abstract Estimate View Download
11 Estimation DPR View Download
12 Lead Statement View Download
13 Analysis View Download
14 Administrative Approval View Download
1st Bill
15 Attac (BRM029) View Download
16 Attac (BRM340) View Download
17 Attac (BRM028) View Download
18 Attac (BRM044) View Download
19 Attac (BRM005) View Download
20 Attac (BRM060) View Download
21 Attac (BRM052) View Download
22 Attac (BRM104) View Download
23 Attac (BRM092) View Download
24 Attac (BRM084) View Download
25 Attac (BRM094) View Download
26 Attac (BRM162) View Download
27 Attac (BRM341) View Download
28 Attac (BRMMR0025) View Download
2nd & Final Bill
29 Attac (BRM129) View Download
30 Attac (BRM340) View Download
31 Attac (BRM028) View Download
32 Attac (BRMMR0027) View Download
33 Attac (BRM130) View Download
34 Attac (BRM174) View Download
35 Attac (BRM131) View Download
36 Attac (BRM255) View Download
37 Attac (BRM253) View Download
38 Attac (BRM140) View Download
39 Attac (BRM141) View Download
40 Attac (BRM138) View Download
41 Attac (BRMMR0005) View Download
42 Attac (BRM271) View Download
43 Attac (BRMMR0008) View Download
44 Attac (BRMMR0013) View Download
45 Attac (BRMMR0012) View Download
46 Attac (BRMMR0011) View Download
47 Attac (BRMMR0010) View Download
48 Attac (BRMMR0009) View Download
49 Geo Tagging View Download
50 Merged Bill Measurement View Download
51 Completion Document View Download